Vue principale Vue 2 Vue 3 Vue 4

CLUB RUGBY

VIGNEUX-SUR-SEINE

AT EQUIPEMENT

phase EXECUTION

budget 180.000 e

PROG 120M²

Vue principale Vue 2 Vue 3 Vue 4

SIEGE SOCIAL

EVRY COURCOURONNES

CONSTRUCTION NEUF

phase EXECUTION

budget 8.500.000 e

PROG 6.589 M²

Vue principale Vue 2 Vue 3 Vue 4

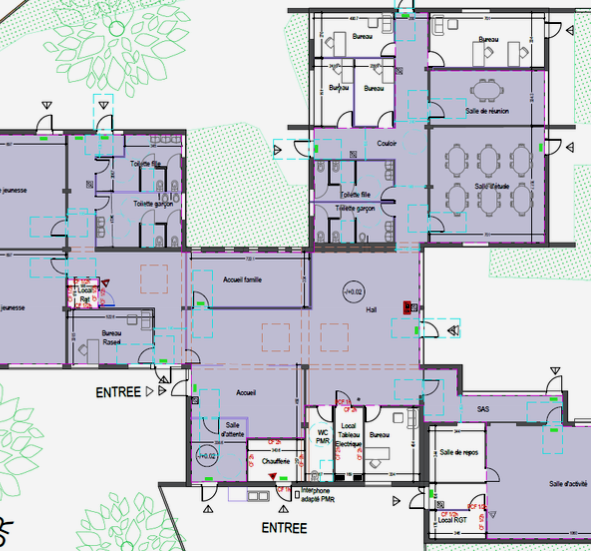
CENTRE CULTUREL

TOUS ENSEMBLE VANVES

CONSTRUCTION NEUF

phase ETUDE

budget 1.600.000 e

Vue principale Vue 2 Vue 3 Vue 4

CENTRE FORMATION CHAMPIGNY-SUR-M

CHAMPIGNY-SUR-MARNE

CONSTRUCTION NEUF

phase ETUDE

budget 2.120.000 e

Vue principale Vue 2 Vue 3 Vue 4

CONFORMITE ECOLE

VIGNEUX-SUR-SEINE

AT EQUIPEMENT

phase EXECUTION

budget 67.000 e

PROG 520M²

Vue principale Vue 2 Vue 3 Vue 4

EGLISE COPTE

SARCELLES

PC EQUIPEMENT

phase EXECUTION

budget 550.000 e

PROG 565M²

Contact

Tel : 06.06.58.86.52

elmt.architecte@gmail.com

×